Note: This article is discontinued.

PYROLINE® Con D BSK I90/E30 fire protection duct

Item no. 7215166 | EAN 4012196025312

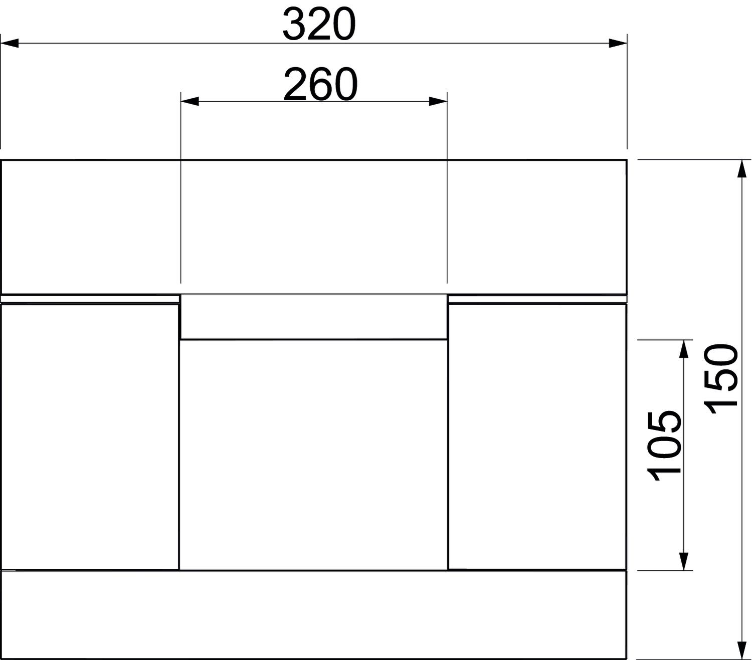
1000 mm
150 mm
105 mm
Product description
Product description
Fire protection duct made from water and frost-proof fibreglass lightweight concrete of building material class A1 according to EN 13501-1 for fireproof laying of cables in rescue and emergency routes, and for the maintenance of electrical functionality of safety-relevant systems. Classification I90 as I duct according to DIN 4102 Part 11 and classification E30 as E duct according to DIN 4102 Part 12.

Mounting of the duct directly on walls or under ceilings.

Including countersunk head screws and sealing strip.
  • Fire protection duct for wall mounting
  • Fire protection duct for ceiling mounting
  • Fire resistance class I90
  • Function maintenance class E30
Technical data

Technical data

Colour Grey
Cover fastening Screw
Dimension 105x260
Dimension b 260 mm
Dimension B 320 mm
Dimension H 150 mm
Dimension h 105 mm
Fire resistance class E − function maintenance 30
Fire resistance class I − installation duct 90
Jacketing Without
Length 1000 mm
Material Fibreglass lightweight concrete
Material of the insulation Glass-fibre lightweight concrete
Number of flammable sides 3
Partitions possible yes
With perforation no
All types

All types

Types Length Dimension B Dimension b Dimension H Dimension h Item no. Quantity SSU
BSK 091016 1000 mm 220 mm 160 mm 150 mm 105 mm 7215162
1 m
BSK 091026 1000 mm 320 mm 260 mm 150 mm 105 mm 7215166
1 m
Accessories

System accessories

Products Types Item no. Quantity SSU
End piece for PYROLINE® Con D BSK I90/E30 fire protection duct End piece for PYROLINE® Con D BSK I90/E30 fire protection duct BSK-E091026 7215258
1 piece
Wall connection collar I90 for internal height 105 mm Wall connection collar I90 for internal height 105 mm BSK-K1026 7215549
1 piece
Doubler for PYROLINE® Con fire protection duct Doubler for PYROLINE® Con fire protection duct KAD-8040 7215464
1 piece
Doubler for PYROLINE® Con fire protection duct Doubler for PYROLINE® Con fire protection duct KAD-10040 7215462
1 piece
Fire protection duct mortar Fire protection duct mortar KTM 7215500
1 piece
Separating bracket for wall mounting Separating bracket for wall mounting BSK-W1026 7215330
25 piece
Separating clamp for ceiling mounting Separating clamp for ceiling mounting BSK-B1026 7215374
25 piece
Cable bracket, vertical, for PYROLINE® fire protection ducts, height 20 mm Cable bracket, vertical, for PYROLINE® fire protection ducts, height 20 mm LHS 20 7215288
10 piece
Cable bracket, vertical, for PYROLINE® fire protection ducts, height 40 mm Cable bracket, vertical, for PYROLINE® fire protection ducts, height 40 mm LHS 40 7215290
10 piece
Cable bracket, vertical, for PYROLINE® fire protection ducts, height 60 mm Cable bracket, vertical, for PYROLINE® fire protection ducts, height 60 mm LHS 60 7215292
10 piece
Downloads

Download
Download

Download

No invitation to tender text is available for this product.